SU模型首页 其它建筑图纸

四合院建筑施工图,四合院CAD建筑图纸下载

资源大小:1.20 下载文件

资源详情

编号: 23436

软件: SketchUp2007

大小: 1.20

时间: 20200529

关键字:

模型介绍

 合院建筑施工图,合院CAD建筑图纸下载内容简介:图纸包含平面图、立面图、剖面图、节点大样图等,作图规范,内容详实,可供参考。

部分图纸展示:

QQ截图20200529100926.png

 

立面图

 

QQ截图20200529100936.png

 

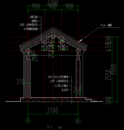
剖面图

 

QQ截图20200529100942.png

 

立面图

QQ截图20200529100949.png

 

立面图

 

QQ截图20200529101016.png

 

平立面图

更多

热门标签

找设计师请拨打:

180-8488-1111
登录