SU模型首页 其它建筑图纸

法兰西风格小镇规划图,CAD图纸下载

资源大小:4.50 下载文件

资源详情

编号: 23422

软件: SketchUp2007

大小: 4.50

时间: 20200529

关键字:

模型介绍

法兰西风格小镇规划图,内含三种小镇规划图,简洁直观,设计精致,具有教较高参考价值。易图网为您提供下载服务,好看实用。

部分图纸展示:

欢乐堡施工图.jpg

平面施工图

欢乐堡立面图.jpg

立面图

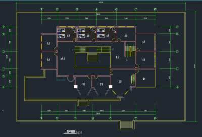
情<a href=https://www.yitu.cn/su/8090.html target=_blank class=infotextkey>人</a>堡一层<a href=https://www.yitu.cn/su/7392.html target=_blank class=infotextkey>平面</a>图.jpg

一层平面

情<a href=https://www.yitu.cn/su/8090.html target=_blank class=infotextkey>人</a>堡二层<a href=https://www.yitu.cn/su/7392.html target=_blank class=infotextkey>平面</a>图.jpg

二层平面

情<a href=https://www.yitu.cn/su/8090.html target=_blank class=infotextkey>人</a>堡立面图.jpg

立面图

 

更多

热门标签

找设计师请拨打:

180-8488-1111
登录