SU模型首页 其它建筑图纸

静音寺建筑CAD施工图,寺庙CAD建筑图纸下载

资源大小:1.30 下载文件

资源详情

编号: 23409

软件: SketchUp2007

大小: 1.30

时间: 20200528

关键字:

  • 寺庙
  • 模型介绍

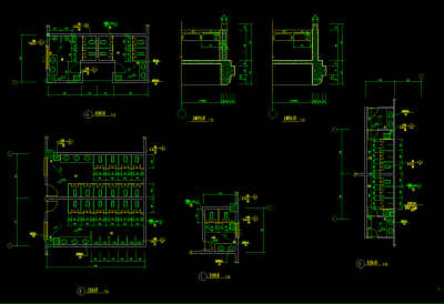
     静音寺建筑CAD施工图,寺庙CAD建筑图纸下载内容简介:图纸包含平面图、立面图、剖面图、节点大样图等,作图规范,内容详实,具有较高的参考价值。

    部分图纸展示:

    QQ截图20200528163221.png

     

    立面图

     

    QQ截图20200528163228.png

     

    剖面图

     

    QQ截图20200528163233.png

     

    平面

     

    QQ截图20200528163240.png

     

    节点大样图

     

    QQ截图20200528163247.png

     

    轴立面图

    更多

    热门标签

    找设计师请拨打:

    180-8488-1111
    登录