SU模型首页 其它建筑图纸

仿古民居建筑施工图,建筑CAD施工图纸下载

资源大小:1.40 下载文件

资源详情

编号: 23384

软件: SketchUp2007

大小: 1.40

时间: 20200528

关键字:

  • 民居
  • 模型介绍

     仿古民居建筑施工图,建筑CAD施工图纸下载内容简介:图纸包含平面图、立面图、剖面图、节点大样图等,作图规范,内容详实,具有较高的参考价值。

    部分图纸展示:

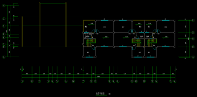
    QQ截图20200528160235.png

     

    平面

     

    QQ截图20200528160244.png

     

    二层平面

     

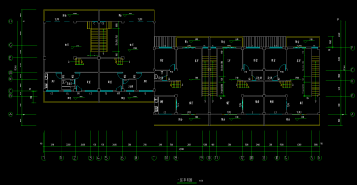
    QQ截图20200528160251.png

     

    三层平面

     

    QQ截图20200528160300.png

     

    立面图

     

    QQ截图20200528160309.png

     

    立面图

     

    QQ截图20200528160318.png

     

    剖面图

    更多

    热门标签

    找设计师请拨打:

    180-8488-1111
    登录