SU模型首页 其它建筑图纸

仿古管理用房亭廊建筑施工图,亭廊CAD建筑图纸下载

资源大小:0.80 下载文件

资源详情

编号: 23375

软件: SketchUp2007

大小: 0.80

时间: 20200528

关键字:

模型介绍

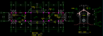
 仿古管理用房廊建筑施工图内容简介:图纸包含平面图、立面图、剖面图、节点大样图等,作图规范,内容详实,具有较高的参考价值。

部分图纸展示:

QQ截图20200528114949.png

 

平面

 

QQ截图20200528115002.png

 

立面图

 

QQ截图20200528115009.png

 

 

剖面图

 

QQ截图20200528115021.png

 

轴立面图

更多

热门标签

找设计师请拨打:

180-8488-1111
登录