SU模型首页 其它建筑图纸

城堡全套CAD施工图,城堡CAD建筑图纸下载

资源大小:2.30 下载文件

资源详情

编号: 23370

软件: SketchUp2007

大小: 2.30

时间: 20200528

关键字:

模型介绍

 城堡全套CAD施工图,城堡CAD建筑图纸下载内容简介:图纸包含平面图、立面图、剖面图、节点大样图等,作图规范,内容详实,具有较高的参考价值。

部分图纸展示:

QQ截图20200528114036.png

 

立面图

 

QQ截图20200528114153.png

 

立面图

 

QQ截图20200528114201.png

 

立面图

 

QQ截图20200528114213.png

 

屋顶平面

 

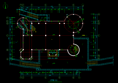
QQ截图20200528114219.png

 

一层平面

更多

热门标签

找设计师请拨打:

180-8488-1111
登录