SU模型首页 其它建筑图纸

仿古佛塔建筑施工图,佛塔CAD建筑图纸下载

资源大小:5.20 下载文件

资源详情

编号: 23346

软件: SketchUp2007

大小: 5.20

时间: 20200528

关键字:

  • 佛塔
  • 模型介绍

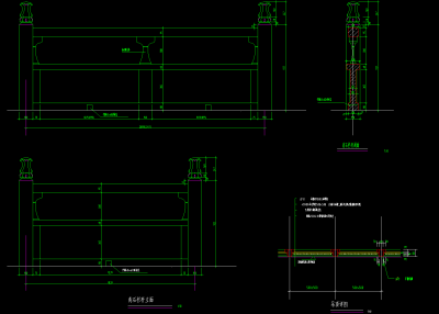
     仿古佛塔建筑施工图,佛塔CAD建筑图纸下载内容简介:图纸包含平面布置图、立面图、剖面图、节点图等,作图规范,内容详实,可供参考。

    部分图纸展示:

    QQ截图20200528104158.png

     

    立面图

     

    QQ截图20200528104208.png

     

    剖面图

     

    QQ截图20200528104215.png

     

    平面

     

    QQ截图20200528104225.png

     

    平面

     

    QQ截图20200528104247.png

     

    立面图

     

    QQ截图20200528104251.png

     

    立面图

    更多

    热门标签

    找设计师请拨打:

    180-8488-1111
    登录