SU模型首页 其它建筑图纸

华藏寺大雄宝殿建筑施工图,寺庙CAD图纸下载

资源大小:14.00 下载文件

资源详情

编号: 23264

软件: SketchUp2007

大小: 14.00

时间: 20200527

关键字:

  • 寺庙
  • 模型介绍

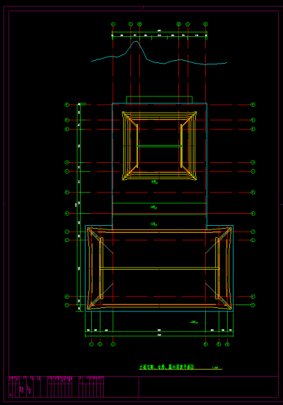
     华藏寺大雄宝殿建筑施工图,寺庙CAD图纸下载内容简介:图纸含有寺庙CAD立面图、平面布置图,节点大样图等,作图规范,具有较高的参考价值。

    部分图纸展示:

    QQ截图20200527171232.png

     

    平面

     

    QQ截图20200527171242.png

     

    立面图

     

    QQ截图20200527171254.png

     

    立面图

     

    QQ截图20200527171307.png

     

    剖面图

     

    QQ截图20200527171316.png

     

    立面图

    更多

    热门标签

    找设计师请拨打:

    180-8488-1111
    登录