别墅类型:独栋别墅 高度类别:多层建筑
设计风格:欧陆风格 结构形式:钢筋混凝土结构
图纸深度:施工图
内容简介:
二层独栋别墅建筑CAD施工图目录:本户型总建筑面积为338.89平方米,占地面积为196.73平米,第一层设有客厅、餐厅、车库、工人房、卫生间、家政间等,第二层建筑面为142.16平米,设有2间卧室、1间主卧室、3间卫生间、进入式衣橱1间。
以下是部分图纸展示:

二层独栋别墅建筑CAD施工图 10-1立面图

二层独栋别墅建筑CAD施工图 1-10立面图

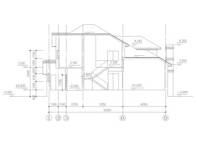
二层独栋别墅建筑CAD施工图 1-1剖面图

二层独栋别墅建筑CAD施工图 2-2剖面图

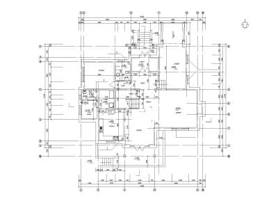
二层独栋别墅建筑CAD施工图 一层平面图

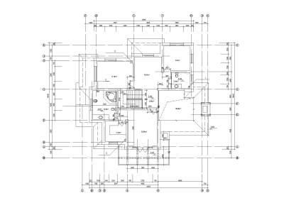
二层独栋别墅建筑CAD施工图 二层平面图
180-8488-1111
登录