SU模型首页 家居

新中式CAD图纸,新中式CAD设计图纸下载

资源大小:1.60 下载文件

资源详情

编号: 93870

软件: SketchUp2007

大小: 1.60

时间: 20220621

关键字:

模型介绍

           空间划分:成套住宅空间                                                                                   图纸深度 :施工图

           住宅空间类型:家装                                                                                           图纸格式:DWG

            设计风格:新中式                                                                                              包含图片:效果图

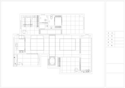
资料为:新中式CAD图纸

资料内容包括:全套施工图、拆除图、面布置图、平面布置图、天顶面定位图、天定位图、原始图。空间设置合理规范,具有较高的参考价值,可作为参考学习的模板,供设计师、建筑师下载参考。

部分图纸展示如下:

<a href=https://www.yitu.cn/su/7872.html target=_blank class=infotextkey>地</a>面铺装图.jpg

 

面铺装图

 

<a href=https://www.yitu.cn/su/6833.html target=_blank class=infotextkey>灯具</a>布置图.jpg

 

灯具布置图

 

局部放大图.jpg

 

局部放大图

 

立面图.jpg /></p>
<p style= 

立面图

 

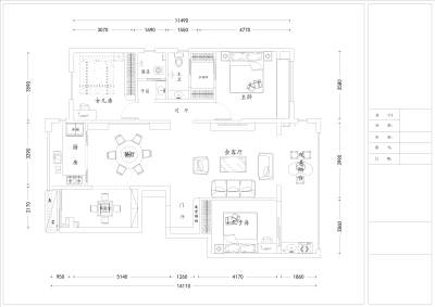
<a href=https://www.yitu.cn/su/7392.html target=_blank class=infotextkey>平面</a>布置图.jpg

 

平面布置图

更多

热门标签

找设计师请拨打:

180-8488-1111
登录