SU模型首页 家居

氧气室内设计万邦国际平大平层样板间施工图CAD图纸,样板间CAD设计图纸下载

资源大小:14.50 下载文件

资源详情

编号: 93633

软件: SketchUp2007

大小: 14.50

时间: 20220614

关键字:

  • 室内
  • 模型介绍

                  空间划分:成套住宅空间                                                                                 图纸深度 :施工图

                  住宅空间类型:大平层                                                                                     图纸格式:DWG

                  设计风格:现代                                                                                                 包含图片:效果图

    资料为:大平层样板间施工图

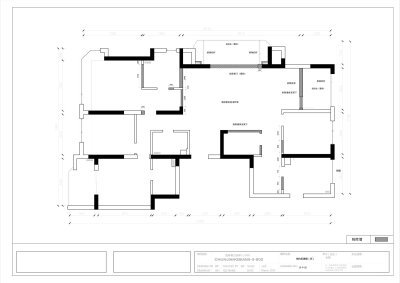
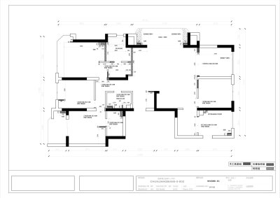
    资料内容包括:全套施工图、拆除图、面布置图、平面布置图、天顶面定位图、天定位图、原始图。空间设置合理规范,具有较高的参考价值,可作为参考学习的模板,供设计师、建筑师下载参考。

    部分图纸展示如下:

    <a href=https://www.yitu.cn/su/6833.html target=_blank class=infotextkey>灯具</a>尺寸图.jpg

     

    灯具尺寸图

     

    <a href=https://www.yitu.cn/su/7458.html target=_blank class=infotextkey>吊顶</a>大样图.jpg

     

    吊顶大样图

     

    柜体剖面图.jpg

     

    柜体剖面图

     

    结构拆建图 新建图.jpg

     

    结构拆建图

     

    结构拆建图.jpg

     

    结构拆建图

    更多

    热门标签

    找设计师请拨打:

    180-8488-1111
    登录