SU模型首页 家居

联排别墅家装设计CAD施工图,别墅室内家居CAD施工图纸下载

资源大小:50.50 下载文件

资源详情

编号: 22853

软件: SketchUp2007

大小: 50.50

时间: 20200106

关键字:

  • 内装
  • 模型介绍

    联排别墅家装设计CAD施工图,别墅室内家居CAD施工图纸下载,内容包含:平面图(平面布置图,顶面布置图,坪布置图,平面尺寸图,平面材质图,顶面尺寸图,顶面材质图),立面图,详图,节点图。

    部分图纸展示:

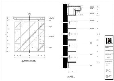
    3F节点图03.jpg

     

    立面图

     

    3F节点图04.jpg

     

    剖面图

     

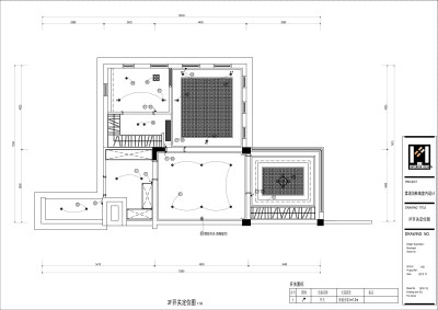
    3F开关定位图.jpg

     

    开关定位图

     

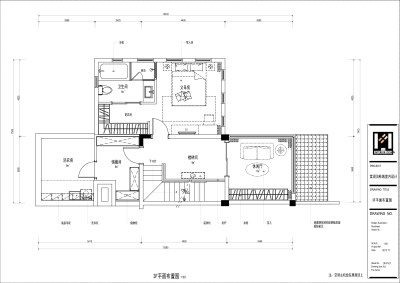
    3F<a href=https://www.yitu.cn/su/7392.html target=_blank class=infotextkey>平面</a>布置图.jpg

     

    平面布置图

     

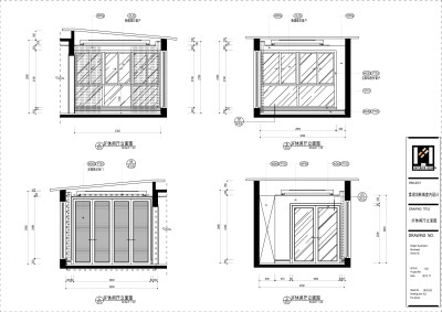
    3F<a href=https://www.yitu.cn/su/7756.html target=_blank class=infotextkey>卫生间</a>立面图.jpg

     

    立面图

     

    3F休闲厅立面图.jpg

     

    立面图

    更多

    热门标签

    找设计师请拨打:

    180-8488-1111
    登录