SU模型首页 家居

别墅室内家装施工图,别墅装饰CAD施工图纸下载

资源大小:14.10 下载文件

资源详情

编号: 22851

软件: SketchUp2007

大小: 14.10

时间: 20200106

关键字:

  • 内装
  • 模型介绍

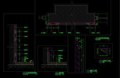
    别墅室内家装施工图,别墅装饰CAD施工图纸下载,内容包含:平面图(平面布置图,天布置图,坪饰面图,隔墙尺寸图,天灯具定位图,索引图,开关点位图);立面图(客餐厅,主卧室,次卧室,客卫,主卫。衣帽间,小孩房);大样图(天面,柜体,墙身,餐厅壁炉); 封面;目录;设计说明;梯施工图;门表图。

    部分图纸展示:

    QQ截图20200106152627.png

     

    大样图

     

    QQ截图20200106152638.png

     

    大样图

     

    QQ截图20200106152645.png

     

    剖面图

     

    QQ截图20200106152653.png

     

    剖面图

     

    QQ截图20200106152704.png

     

    剖面图

     

    QQ截图20200106152748.png

     

    立面图

     

    QQ截图20200106152810.png

     

    立面图

    更多

    热门标签

    找设计师请拨打:

    180-8488-1111
    登录