SU模型首页 家居

住宅家装CAD施工图,住宅室内装饰CAD施工图纸下载

资源大小:12.80 下载文件

资源详情

编号: 22848

软件: SketchUp2007

大小: 12.80

时间: 20200106

关键字:

  • 内装
  • 模型介绍

    住宅家装CAD施工图,住宅室内装饰CAD施工图纸下载,内容包含:1-3层平面图(平面布置图,天布置图,坪饰面图,隔墙尺寸图,天灯具定位图,索引图,开关点位图);立面图(玄关下室,娱乐房,过道,书房厨房,客餐厅,主卧室,次卧室衣帽间,小孩房,卫生间);大样图; 封面;目录;设计说明。

    部分图纸展示:

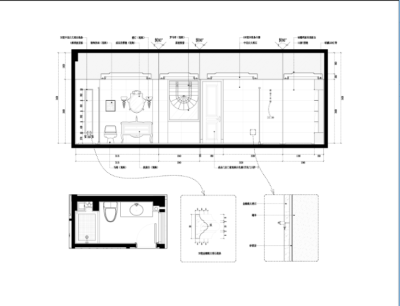
    二层<a href=https://www.yitu.cn/su/7392.html target=_blank class=infotextkey>平面</a>布置图.png

     

    平面布置图

     

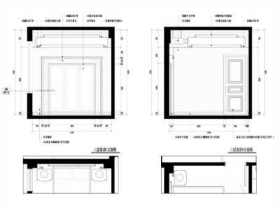
    客房立面图.png

     

    客房立面图

     

    <a href=https://www.yitu.cn/su/7392.html target=_blank class=infotextkey>平面</a>布置图.png

     

    平面布置图

     

    一层<a href=https://www.yitu.cn/su/7392.html target=_blank class=infotextkey>平面</a>布置图.png

     

    平面布置图

     

    主卧立面图.png

     

    立面图

    更多

    热门标签

    找设计师请拨打:

    180-8488-1111
    登录