SU模型首页 家居

样板间室内装修施工图,样板间家装设计CAD施工图纸下载

资源大小:64.70 下载文件

资源详情

编号: 22762

软件: SketchUp2007

大小: 64.70

时间: 20200103

关键字:

  • 内装
  • 模型介绍

    样板间室内装修施工图,样板间家装设计CAD施工图纸下载,本案融合了美式的自然脱俗和法式精致典雅,通过低纯度的色彩,做旧的家具饰品,加上材、镜面、金色的点缀,使宁静而又精致的品位生活得以诠释。

    部分图纸展示:

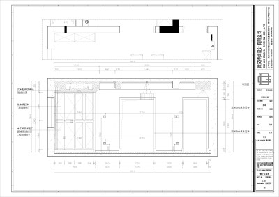
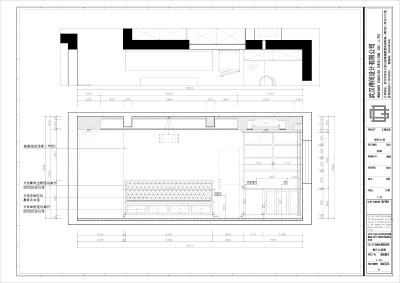
    <a href=https://www.yitu.cn/sketchup/canting/index.html target=_blank class=infotextkey><a href=https://www.yitu.cn/su/7825.html target=_blank class=infotextkey>餐厅</a></a>立面图02.jpg

     

    立面图

     

    <a href=https://www.yitu.cn/su/6833.html target=_blank class=infotextkey>灯具</a>定位图.jpg

     

    灯具定位图

     

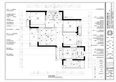
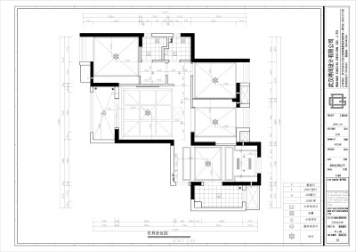
    顶面布置图.jpg

     

    顶面布置图

     

    顶面尺寸图.jpg

     

    顶面尺寸图

     

    开关布置图.jpg

     

    开关布置图

     

    客<a href=https://www.yitu.cn/sketchup/canting/index.html target=_blank class=infotextkey><a href=https://www.yitu.cn/su/7825.html target=_blank class=infotextkey>餐厅</a></a>立面图.jpg

     

    餐厅立面图

     

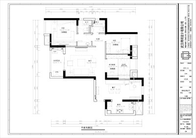
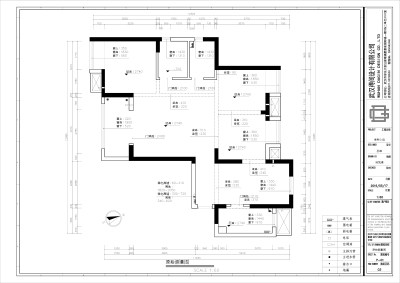
    <a href=https://www.yitu.cn/su/7392.html target=_blank class=infotextkey>平面</a>布置图.jpg

     

    平面布置图

     

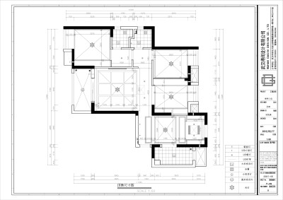
    原始测量图.jpg

     

    原始测量图

    更多

    热门标签

    找设计师请拨打:

    180-8488-1111
    登录