SU模型首页 家居

住宅装修设计施工图,住宅家装CAD施工图纸下载

资源大小:19.60 下载文件

资源详情

编号: 22534

软件: SketchUp2007

大小: 19.60

时间: 20191227

关键字:

模型介绍

住宅装修设计施工图,住宅家装CAD施工图纸下载资料内容包括;设计说明、施工图(简介、目录、施工说明、电图符合表、平面、立面、大样等)、物料说明、电图、效果图,软装搭配等。

部分图纸展示:

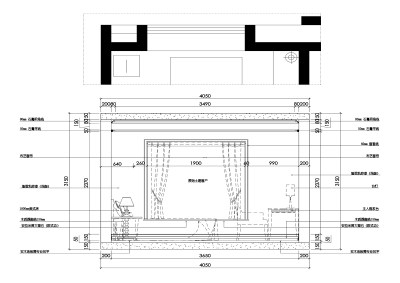
客<a href=https://www.yitu.cn/sketchup/canting/index.html target=_blank class=infotextkey><a href=https://www.yitu.cn/su/7825.html target=_blank class=infotextkey>餐厅</a></a>1.jpg

 

餐厅立面图

 

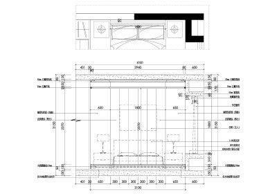
客<a href=https://www.yitu.cn/sketchup/canting/index.html target=_blank class=infotextkey><a href=https://www.yitu.cn/su/7825.html target=_blank class=infotextkey>餐厅</a></a>2.jpg

 

餐厅立面图

 

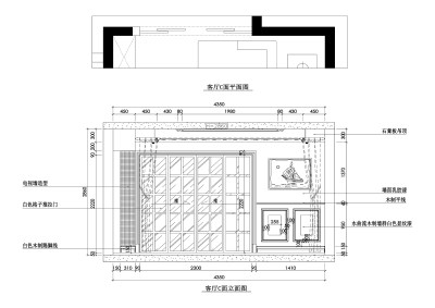
<a href=https://www.yitu.cn/sketchup/keting/index.html target=_blank class=infotextkey><a href=https://www.yitu.cn/su/6863.html target=_blank class=infotextkey>客厅</a></a>1.jpg

 

客厅立面图

 

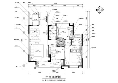
<a href=https://www.yitu.cn/su/7392.html target=_blank class=infotextkey>平面</a>.jpg

 

平面

 

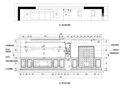
<a href=https://www.yitu.cn/sketchup/woshi/index.html target=_blank class=infotextkey><a href=https://www.yitu.cn/su/7632.html target=_blank class=infotextkey>卧室</a></a>1.jpg

 

卧室立面图

 

<a href=https://www.yitu.cn/sketchup/woshi/index.html target=_blank class=infotextkey><a href=https://www.yitu.cn/su/7632.html target=_blank class=infotextkey>卧室</a></a>2.jpg

 

卧室立面图

更多

热门标签

找设计师请拨打:

180-8488-1111
登录