SU模型首页 家居

简欧风格平层公寓装修施工图,公寓室内装饰CAD施工图纸下载

资源大小:69.30 下载文件

资源详情

编号: 22532

软件: SketchUp2007

大小: 69.30

时间: 20191227

关键字:

  • 内装
  • 模型介绍

    简欧风格平层公寓装修施工图,公寓室内装饰CAD施工图纸下载本资料为140平简欧风格平层公寓装修施工图+效果图,为三室两厅的平层公寓,设计师以白色为基调,简欧的设计手法来营造现代奢华的感觉。进门玄关处采用整体定制柜大面积装饰墙面,增加其储物功能。挂壁式缸成为进门一景,在风上也有一定的寓意,丰富了墙面元素。

    部分图纸展示:

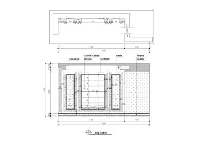
    <a href=https://www.yitu.cn/sketchup/canting/index.html target=_blank class=infotextkey><a href=https://www.yitu.cn/su/7825.html target=_blank class=infotextkey>餐厅</a></a>.jpg

     

    餐厅立面图

     

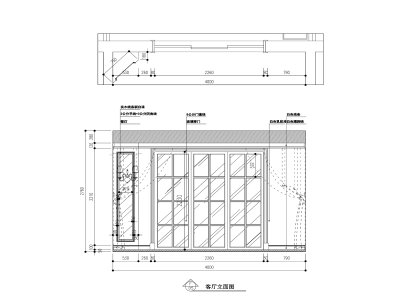
    <a href=https://www.yitu.cn/sketchup/keting/index.html target=_blank class=infotextkey><a href=https://www.yitu.cn/su/6863.html target=_blank class=infotextkey>客厅</a></a><a href=https://www.yitu.cn/su/7226.html target=_blank class=infotextkey>电视</a>_看图王.jpg

     

    客厅立面图

     

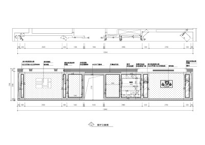
    <a href=https://www.yitu.cn/sketchup/keting/index.html target=_blank class=infotextkey><a href=https://www.yitu.cn/su/6863.html target=_blank class=infotextkey>客厅</a></a><a href=https://www.yitu.cn/su/6783.html target=_blank class=infotextkey>沙发</a>.jpg

     

    客厅沙发立面图

     

    <a href=https://www.yitu.cn/sketchup/keting/index.html target=_blank class=infotextkey><a href=https://www.yitu.cn/su/6863.html target=_blank class=infotextkey>客厅</a></a><a href=https://www.yitu.cn/sketchup/yangtai/index.html target=_blank class=infotextkey><a href=https://www.yitu.cn/su/7897.html target=_blank class=infotextkey>阳台</a></a>_看图王.jpg

     

    客厅阳台立面图

     

    客卧.jpg

     

    卧房立面图

     

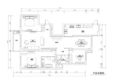
    <a href=https://www.yitu.cn/su/7392.html target=_blank class=infotextkey>平面</a>.jpg

     

    平面

     

    主卧_看图王.jpg

     

    主卧立面图

    更多

    热门标签

    找设计师请拨打:

    180-8488-1111
    登录