SU模型首页 家居

现代风格住宅装修施工图,住宅家装CAD施工图纸下载

资源大小:8.90 下载文件

资源详情

编号: 22504

软件: SketchUp2007

大小: 8.90

时间: 20191227

关键字:

模型介绍

现代风格住宅装修施工图,住宅家装CAD施工图纸下载,资料内容为:现代风格两居室住宅装修施工图+效果图。

部分图纸展示:

<a href=https://www.yitu.cn/sketchup/canting/index.html target=_blank class=infotextkey><a href=https://www.yitu.cn/su/7825.html target=_blank class=infotextkey>餐厅</a></a>1.jpg

 

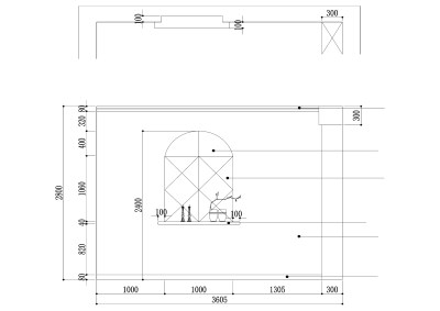
客厅立面图

<a href=https://www.yitu.cn/sketchup/canting/index.html target=_blank class=infotextkey><a href=https://www.yitu.cn/su/7825.html target=_blank class=infotextkey>餐厅</a></a>2.jpg

 

餐厅立面图

<a href=https://www.yitu.cn/sketchup/keting/index.html target=_blank class=infotextkey><a href=https://www.yitu.cn/su/6863.html target=_blank class=infotextkey>客厅</a></a>1.jpg

 

客厅平面

 

<a href=https://www.yitu.cn/sketchup/keting/index.html target=_blank class=infotextkey><a href=https://www.yitu.cn/su/6863.html target=_blank class=infotextkey>客厅</a></a>2.jpg

 

客厅立面图

 

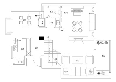
<a href=https://www.yitu.cn/su/7392.html target=_blank class=infotextkey>平面</a>1.jpg

 

平面

 

<a href=https://www.yitu.cn/su/7392.html target=_blank class=infotextkey>平面</a>2.jpg

 

平面

 

主卧1.jpg

 

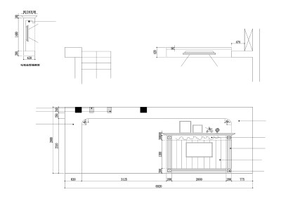
主卧立面图

更多

热门标签

找设计师请拨打:

180-8488-1111
登录