SU模型首页 家居

北欧风格样板房设计CAD施工图,住宅家装CAD施工图纸下载

资源大小:171.80 下载文件

资源详情

编号: 22389

软件: SketchUp2007

大小: 171.80

时间: 20191226

关键字:

模型介绍

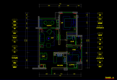
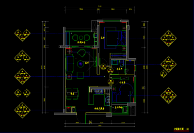
 北欧风格样板房设计CAD施工图,住宅家装CAD施工图纸下载内容包含:目录,平面图(原始结构图,墙体拆除图,墙体砌筑图,平面布置图,平面尺寸参考图,面物料图,顶面布置图,顶面尺寸图,灯具定位图,开关布置图,强电插座布置图,弱电插座布置图,管走向图,立面索引图);立面图(客餐厅,过道,主卧,走入式衣柜,次卧,儿童房,书房卫生间阳台)

部分图纸展示:

QQ截图20191226145010.png

 

平面布置图

 

QQ截图20191226145028.png

 

面铺贴图

 

QQ截图20191226145040.png

 

投影

 

QQ截图20191226145059.png

 

插座布置图

 

QQ截图20191226145114.png

 

立面索引图

 

QQ截图20191226145300.png

 

客厅立面图

 

QQ截图20191226145321.png

 

餐厅立面图

 

QQ截图20191226145336.png

 

厨房立面图

更多

热门标签

找设计师请拨打:

180-8488-1111
登录