SU模型首页 家居

欧陆风格豪华大宅施工图

资源大小:24.00 下载文件

资源详情

编号: 16082

软件: SketchUp2007

大小: 24.00

时间: 20191025

关键字:

  • 建筑施工图纸
  • 建筑工程图纸
  • 模型介绍

    空间划分:三居室                      图纸深度:竣工图

    设计风格:欧陆                          结构类型:平层

    包含图纸:实景图片

    内容简介:

    欧陆风格豪华大宅施工图目录:实景拍摄、CAD施工图、施工说明、材料表、设计说明等,具有包括样板间平面图、立面图、图纸目录等。采用欧陆的设计风格,营造大气高端的氛围,提高居住质量。

    部分图纸展示:

     

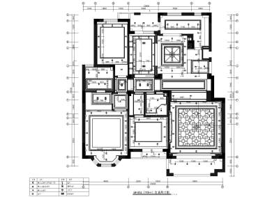
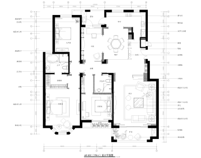
    中齐195<a href=https://www.yitu.cn/su/7212.html target=_blank class=infotextkey>户型</a> <a href=https://www.yitu.cn/su/7392.html target=_blank class=infotextkey>平面</a>布置图

     

    中齐195户型 平面布置图

     

    中齐195<a href=https://www.yitu.cn/su/7212.html target=_blank class=infotextkey>户型</a> <a href=https://www.yitu.cn/su/7872.html target=_blank class=infotextkey>地</a>面铺装图

     

    中齐195户型 面铺装图

     

    中齐195<a href=https://www.yitu.cn/su/7212.html target=_blank class=infotextkey>户型</a> 天<a href=https://www.yitu.cn/sketchup/huayi/index.html target=_blank class=infotextkey>花</a>布置图

     

    中齐195户型布置图

     

    中齐195<a href=https://www.yitu.cn/su/7212.html target=_blank class=infotextkey>户型</a> 灯位尺寸图

     

    中齐195户型 灯位尺寸图

     

    中齐195<a href=https://www.yitu.cn/su/7212.html target=_blank class=infotextkey>户型</a> 开关布置图

     

    中齐195户型 开关布置图

     

    中齐195<a href=https://www.yitu.cn/su/7212.html target=_blank class=infotextkey>户型</a> <a href=https://www.yitu.cn/su/7656.html target=_blank class=infotextkey>插座</a>配置图

     

    中齐195户型 插座配置图

     

    中齐195<a href=https://www.yitu.cn/su/7212.html target=_blank class=infotextkey>户型</a> <a href=https://www.yitu.cn/sketchup/canting/index.html target=_blank class=infotextkey><a href=https://www.yitu.cn/su/7825.html target=_blank class=infotextkey>餐厅</a></a>立面图

     

    中齐195户型 餐厅立面图

     

    中齐195<a href=https://www.yitu.cn/su/7212.html target=_blank class=infotextkey>户型</a> <a href=https://www.yitu.cn/sketchup/keting/index.html target=_blank class=infotextkey><a href=https://www.yitu.cn/su/6863.html target=_blank class=infotextkey>客厅</a></a>立面图01

     

    中齐195户型 客厅立面图01

    更多

    热门标签

    找设计师请拨打:

    180-8488-1111
    登录