SU模型首页 公共空间

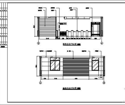
轻轨车站装修图

资源大小:0.70 下载文件

资源详情

编号: 16829

软件: SketchUp2007

大小: 0.70

时间: 20191104

关键字:

  • 设计施工图
  • 工程施工图
  • 模型介绍

    图纸格式:CAD2000                                     图纸深度:施工图

    设计风格:现代风格                                      图纸张数:20张

    空间划分:成套图纸                                      功能类型:火车

    内容简介:

    轻轨车站装修图。采用现代的设计风格,对平面布置图、顶面布置图、各立面图、主要剖面、大样图等进行初步设计。加强景观细部设计,促进公共空间的发展,促进城市发展,健全设施建设,便利们生活。

     

    轻轨车站装修图

     

     

    2

     

    2

     

    3

     

    3

     

    4

     

    4

    更多

    热门标签

    找设计师请拨打:

    180-8488-1111
    登录