SU模型首页 餐饮空间

[福州]日式餐饮空间日本料理店室内装修施工图,料理店cad设计图纸下载

资源大小:66.10 下载文件

资源详情

编号: 91420

软件: SketchUp2007

大小: 66.10

时间: 20211023

关键字:

  • 空间
  • 室内
  • 模型介绍

                                        空间划分:成套餐饮空间                                                        图纸深度 :施工图

                                       餐饮类型:料理店                                                                     图纸格式:JPG

                                        设计风格:日式

    资料为:[福州]日式餐饮空间日本料理店室内装修施工图

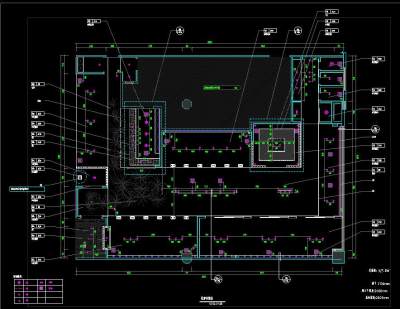
    资料内容包括:全套施工图面照明点位图、吊顶布置图、平面布置图、强弱电布置图、墙体定位图、天照明控制点位图等,空间设置合理规范,具有较高的参考价值,可作为参考学习的模板,供设计师、建筑师下载参考。

    部分图纸展示如下:

    <a href=https://www.yitu.cn/su/7872.html target=_blank class=infotextkey>地</a>面照明点位图.jpg

     

    面照明点位图

     

    <a href=https://www.yitu.cn/su/7458.html target=_blank class=infotextkey>吊顶</a>布置图.jpg

     

    吊顶布置图

     

    <a href=https://www.yitu.cn/su/7392.html target=_blank class=infotextkey>平面</a>布置图.jpg

     

    平面布置图

     

    强弱电布置图.jpg

     

    强弱电布置图

     

    墙体定位图.jpg

     

    墙体定位图

     

    天<a href=https://www.yitu.cn/sketchup/huayi/index.html target=_blank class=infotextkey>花</a>照明控制点位图.jpg

     

    照明控制点位图

    更多

    热门标签

    找设计师请拨打:

    180-8488-1111
    登录