SU模型首页 餐饮空间

现代咖啡店CAD图纸,咖啡店cad设计图纸下载

资源大小:3.10 下载文件

资源详情

编号: 91359

软件: SketchUp2007

大小: 3.10

时间: 20211020

关键字:

模型介绍

                                     空间划分:成套餐饮空间                                                        图纸深度 :施工图

                                    餐饮类型:咖啡店                                                                    图纸格式:JPG

                                    设计风格:现代

资料为:现代咖啡店CAD图纸

资料内容包括:全套施工图、电路系统图、家具尺寸图、平面布置图、路改造图、新建墙体图、原始平面图等,空间设置合理规范,具有较高的参考价值,可作为参考学习的模板,供设计师、建筑师下载参考。

部分图纸展示如下:

电路系统图.jpg

 

电路系统图

 

家具尺寸图.jpg

 

家具尺寸图

 

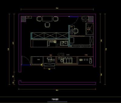
<a href=https://www.yitu.cn/su/7392.html target=_blank class=infotextkey>平面</a>布置图.jpg /></p>
<p style= 

平面布置图

 

<a href=https://www.yitu.cn/su/5628.html target=_blank class=infotextkey>水</a>路改造图.jpg

 

路改造图

 

原始<a href=https://www.yitu.cn/su/7392.html target=_blank class=infotextkey>平面</a>图.jpg

 

 

原始平面

更多

热门标签

找设计师请拨打:

180-8488-1111
登录