SU模型首页 餐饮空间

食堂建筑设计CAD图纸,食堂cad设计图纸下载

资源大小:0.30 下载文件

资源详情

编号: 91332

软件: SketchUp2007

大小: 0.30

时间: 20211020

关键字:

模型介绍

                                     空间划分:成套餐饮空间                                                      图纸深度 :施工图

                                    餐饮类型:餐厅                                                                     图纸格式:JPG

                                     设计风格:现代

资料为:食堂建筑设计CAD图纸

资料内容包括:全套施工图、二层平面布置图、三层平面布置图、屋顶平面布置图、一层平面布置图、轴立面图、轴立面图等,空间设置合理规范,具有较高的参考价值,可作为参考学习的模板,供设计师、建筑师下载参考。

部分图纸展示如下:

二层<a href=https://www.yitu.cn/su/7392.html target=_blank class=infotextkey>平面</a>布置图.jpg

 

二层平面布置图

 

三层<a href=https://www.yitu.cn/su/7392.html target=_blank class=infotextkey>平面</a>布置图.jpg

 

三层平面布置图

 

屋顶<a href=https://www.yitu.cn/su/7392.html target=_blank class=infotextkey>平面</a>布置图.jpg

 

屋顶平面布置图

 

一层<a href=https://www.yitu.cn/su/7392.html target=_blank class=infotextkey>平面</a>布置图.jpg

 

一层平面布置图

 

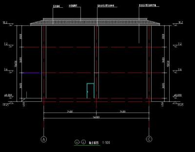
轴立面图.jpg

 

轴立面图

 

轴立面图1.jpg

 

轴立面图

 

轴立面图2.jpg

 

轴立面图

更多

热门标签

找设计师请拨打:

180-8488-1111
登录