SU模型首页 餐饮空间

韩国料理烤肉店施工图概念方案效果图,烤肉店cad设计图施工图纸下载

资源大小:9.60 下载文件

资源详情

编号: 91313

软件: SketchUp2007

大小: 9.60

时间: 20211018

关键字:

模型介绍

                                    空间划分:成套餐饮空间                                                          图纸深度 :施工图

                                   餐饮类型:烤肉店                                                                     图纸格式:JPG

                                    设计风格:现代

资料为:韩国料理烤肉店施工图概念方案效果图

资料内容包括:全套施工图、安装大样图、给排设计说明、给排施工图、节点图、平面图、宗家机电施施工图等,空间设置合理规范,具有较高的参考价值,可作为参考学习的模板,供设计师、建筑师下载参考。

部分图纸展示如下:

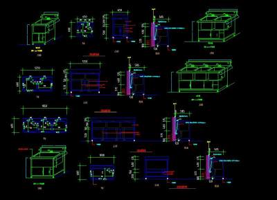
安装大样图.jpg

 

安装大样图

 

给排<a href=https://www.yitu.cn/su/5628.html target=_blank class=infotextkey>水</a><a href=https://www.yitu.cn/su/7590.html target=_blank class=infotextkey>设计</a>说明.jpg

 

给排设计说明

 

给排<a href=https://www.yitu.cn/su/5628.html target=_blank class=infotextkey>水</a>施工图.jpg

 

给排施工图

 

节点图.jpg

 

节点图

 

<a href=https://www.yitu.cn/su/7392.html target=_blank class=infotextkey>平面</a>图.jpg

 

平面

 

宗家机电<a href=https://www.yitu.cn/su/5628.html target=_blank class=infotextkey>水</a>施施工图.jpg

 

宗家机电施施工图

更多

热门标签

找设计师请拨打:

180-8488-1111
登录