SU模型首页 餐饮空间

中式风格咖啡厅装修设计方案,咖啡厅cad设计图纸下载

资源大小:4.40 下载文件

资源详情

编号: 91301

软件: SketchUp2007

大小: 4.40

时间: 20211017

关键字:

模型介绍

                                    空间划分:成套餐饮空间                                                        图纸深度 :施工图

                                   餐饮类型:咖啡厅                                                                  图纸格式:JPG

                                   设计风格:现代

资料为:中式风格咖啡厅装修设计方案.

资料内容包括:全套施工图、大堂立面图、二层总平面图、一层平顶立面图、一层总平面图等。空间设置合理规范,具有较高的参考价值,可作为参考学习的模板,供设计师、建筑师下载参考。

部分图纸展示如下:

大堂立面图.jpg

 

大堂立面图

 

,.jpg

 

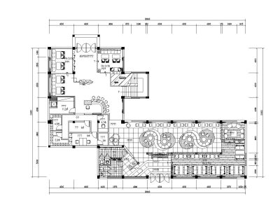
平面布置图

 

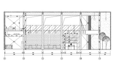
立面图.jpg

 

立面图

 

立面图2.jpg /></p>
<p style= 

立面图

 

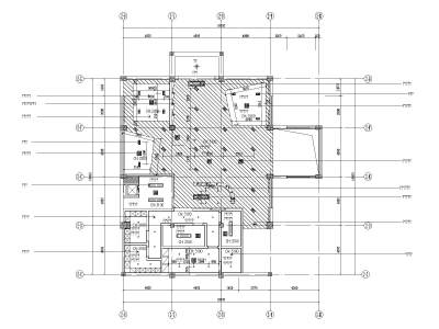
一层平顶立面图-布局1.jpg

 

一层平顶立面图-布局

 

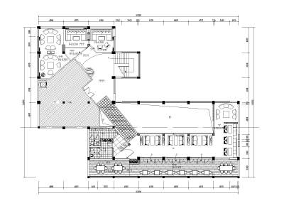
一层总<a href=https://www.yitu.cn/su/7392.html target=_blank class=infotextkey>平面</a>图-Model.jpg

 

一层总平面

更多

热门标签

找设计师请拨打:

180-8488-1111
登录