SU模型首页 餐饮空间

建业艾美日本餐厅cad设计图纸下载,餐厅CAD施工图设计图下载

资源大小:36.90 下载文件

资源详情

编号: 91277

软件: SketchUp2007

大小: 36.90

时间: 20211015

关键字:

模型介绍

                                     空间划分:成套餐饮空间                                                     图纸深度 :施工图

                                     餐饮类型:餐厅                                                                    图纸格式:JPG

                                     设计风格:现代

资料为:建业艾美日本餐厅cad设计图纸下载

资料内容包括:全套施工图,大样图、立面图、平面布置图、平面图等,个好的餐厅设计能让感受到非常强的仪式感。俗话说“民以食为天”,在室内设计餐厅也是一项非常重要的存在。采光,格局,家具都能影响餐厅的呈现效果,效果好的餐厅不只是让心旷神怡,甚至可以是“食欲倍增”。空间设置合理规范,具有较高的参考价值,可作为参考学习的模板,供设计师、建筑师下载参考。

部分图纸展示如下:

大样图.jpg

 

大样图

 

大样图1.jpg

 

大样图

 

立面图.jpg

 

立面图

 

<a href=https://www.yitu.cn/su/7392.html target=_blank class=infotextkey>平面</a>布置图.jpg

 

平面布置图

 

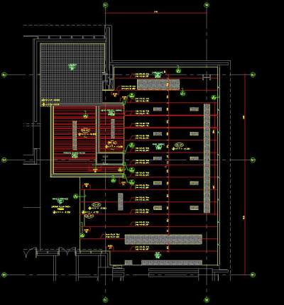
<a href=https://www.yitu.cn/su/7392.html target=_blank class=infotextkey>平面</a>图.jpg

 

平面

 

<a href=https://www.yitu.cn/su/7392.html target=_blank class=infotextkey>平面</a>图1.jpg

 

平面

更多

热门标签

找设计师请拨打:

180-8488-1111
登录