SU模型首页 餐饮空间

南通赛格广场猫屎咖啡店装饰施工图CAD图纸.,咖啡店cad设计图纸下载

资源大小:18.30 下载文件

资源详情

编号: 91255

软件: SketchUp2007

大小: 18.30

时间: 20211012

关键字:

模型介绍

                                       空间划分:成套餐饮空间                                                        图纸深度 :施工图

                                      餐饮类型:咖啡店                                                                     图纸格式:JPG

                                      设计风格:现代

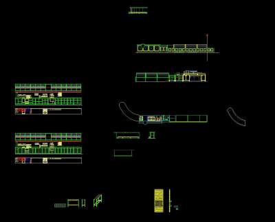
资料为:南通赛格广场猫屎咖啡店装饰施工图CAD图纸

资料内容包括:全套施工图、猫屎咖啡赛格广场店大样图、猫屎咖啡赛格广场店立面图、猫屎咖啡赛格广场店平面图等,空间设置合理规范,具有较高的参考价值,可作为参考学习的模板,供设计师、建筑师下载参考。

部分图纸展示如下:

猫屎咖啡赛格广场店大样图.jpg

 

猫屎咖啡赛格广场店大样图

猫屎咖啡赛格广场店大样图1.jpg

 

猫屎咖啡赛格广场店大样图1

 

猫屎咖啡赛格广场店立面图.jpg

 

猫屎咖啡赛格广场店立面图

 

猫屎咖啡赛格广场店立面图1.jpg

 

猫屎咖啡赛格广场店立面图

 

猫屎咖啡赛格广场店<a href=https://www.yitu.cn/su/7392.html target=_blank class=infotextkey>平面</a>图.jpg

 

猫屎咖啡赛格广场店平面

更多

热门标签

找设计师请拨打:

180-8488-1111
登录