SU模型首页 餐饮空间

现代中餐厅设计施工图,餐厅CAD施工图纸下载

资源大小:3.00 下载文件

资源详情

编号: 25271

软件: SketchUp2007

大小: 3.00

时间: 20200709

关键字:

模型介绍

  空间划分:成套餐厅                                       图纸深度:施工图

  功能类型:中餐厅                                           设计风格:现代风格

  图片格式:JPG                                               包含图片:施工图

  本资料为:现代中餐厅CAD施工图,内附详细施工图。

  资料内容包括:全套CAD施工图,一层中餐厅平面布置图,中餐厅1视角立面图,中餐厅2视角立面图,中餐厅3视角立面图,中餐厅5视角立面图,中餐厅9视角立面图,中餐厅10视角立面图,剖面大样图,内容详实,简洁直观,图纸中无错漏碰缺,作图规范,具有较高的参考价值,可供设计师参考。

  部分图纸展示:

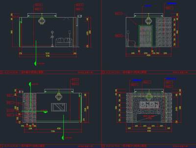
中<a href=https://www.yitu.cn/sketchup/canting/index.html target=_blank class=infotextkey><a href=https://www.yitu.cn/su/7825.html target=_blank class=infotextkey>餐厅</a></a>3视角立面图.jpg

 

立面图

 

中<a href=https://www.yitu.cn/sketchup/canting/index.html target=_blank class=infotextkey><a href=https://www.yitu.cn/su/7825.html target=_blank class=infotextkey>餐厅</a></a>5视角立面图.jpg

 

立面图

 

中<a href=https://www.yitu.cn/sketchup/canting/index.html target=_blank class=infotextkey><a href=https://www.yitu.cn/su/7825.html target=_blank class=infotextkey>餐厅</a></a>9、10、11、12视角立面图.jpg

 

立面图

 

中<a href=https://www.yitu.cn/sketchup/canting/index.html target=_blank class=infotextkey><a href=https://www.yitu.cn/su/7825.html target=_blank class=infotextkey>餐厅</a></a>h剖面大样图.jpg

 

剖面大样图

 

中<a href=https://www.yitu.cn/sketchup/canting/index.html target=_blank class=infotextkey><a href=https://www.yitu.cn/su/7825.html target=_blank class=infotextkey>餐厅</a></a><a href=https://www.yitu.cn/su/7043.html target=_blank class=infotextkey>服务台</a>大样图.jpg

 

服务台大样图

更多

热门标签

找设计师请拨打:

180-8488-1111
登录