SU模型首页 餐饮空间

食堂平面布置设计图,食堂施工图dwg文件下载

资源大小:0.50 下载文件

资源详情

编号: 25267

软件: SketchUp2007

大小: 0.50

时间: 20200709

关键字:

模型介绍

  空间划分:成套餐厅                                      图纸深度:施工图

  功能类型:餐厅                                              设计风格:现代风格

  图片格式:JPG                                               包含图片:施工图

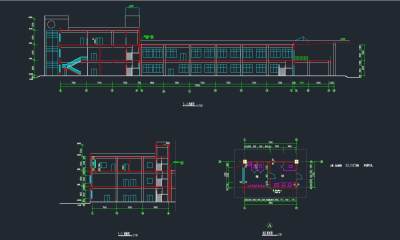
  本资料为:现代食堂CAD施工图,内附详细施工图。

  资料内容包括:全套CAD施工图,1-1剖面图,2-2剖面图,1-15轴立面图,15-1轴立面图,A-I轴立面图,I-A轴立面图,二层平面施工图,三层平面施工图,屋面排示意图,一层平面施工图,内容详实,简洁直观,图纸中无错漏碰缺,作图规范,具有较高的参考价值,可供设计师参考。

  部分图纸展示:

三层<a href=https://www.yitu.cn/su/7392.html target=_blank class=infotextkey>平面</a>图.jpg

 

平面

 

屋面排<a href=https://www.yitu.cn/su/5628.html target=_blank class=infotextkey>水</a>示意图.jpg

 

示意图

 

1-15  15-1轴立面图.jpg

 

立面图

 

a-i  i-a轴立面图.jpg

 

立面图

 

1-1  2-2剖面图.jpg

 

剖面图

更多

热门标签

找设计师请拨打:

180-8488-1111
登录