SU模型首页 餐饮空间

现代食堂建筑全套施工图,食堂CAD施工图纸下载

资源大小:0.40 下载文件

资源详情

编号: 25264

软件: SketchUp2007

大小: 0.40

时间: 20200709

关键字:

模型介绍

  空间划分:成套餐厅                                      图纸深度:施工图

  功能类型:餐厅                                              设计风格:现代风格

  图片格式:JPG                                               包含图片:施工图

  本资料为:现代食堂CAD施工图,内附详细施工图。

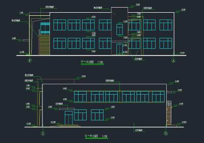
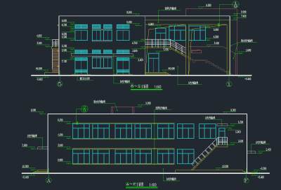
  资料内容包括:全套CAD施工图,1-1剖面图,2-2剖面图,A-F立面图,5-1立面图,F-A立面图,1-5立面图,二层平面图,平面剖面图,平面图,一层平面布置施工图,内容详实,简洁直观,图纸中无错漏碰缺,作图规范,具有较高的参考价值,可供设计师参考。

  部分图纸展示:

a-f   5-1立面.jpg

 

立面图

 

f-a   1-5立面.jpg

 

立面图

 

1-1剖面.jpg

 

剖面图

 

2-2剖面.jpg

 

剖面图

 

<a href=https://www.yitu.cn/sketchup/louti/index.html target=_blank class=infotextkey><a href=https://www.yitu.cn/su/6782.html target=_blank class=infotextkey><a href=https://www.yitu.cn/su/8159.html target=_blank class=infotextkey>楼</a>梯</a></a><a href=https://www.yitu.cn/su/7392.html target=_blank class=infotextkey>平面</a>剖面图.jpg

 

剖面图

更多

热门标签

找设计师请拨打:

180-8488-1111
登录