SU模型首页 餐饮空间

现代麦当劳cad施工图,餐厅cad图纸下载

资源大小:3.10 下载文件

资源详情

编号: 25042

软件: SketchUp2007

大小: 3.10

时间: 20200630

关键字:

模型介绍

   空间划分:餐饮空间                                          图纸深度:施工图

  商业类型:高档餐厅                                           设计风格:现代风格

  本资料为现代麦当劳cad施工图

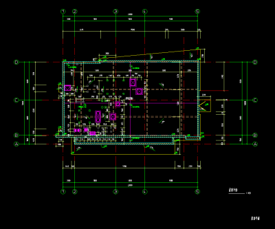
  资料内容包括:全套CAD施工图,一层平面布置图,屋顶平面图,立面图,剖面图,卫生间平面图,一层配置平面图等,餐厅的动线应尽量使餐厅中客的流通甬道宽畅,服务员的动线越短越好。应充分利用自然光线,给客以舒适明亮的感觉。内容详实,可供参考,图纸中无错漏碰缺,具有较高的参考价值。

  部分图纸展示:

$YX1`]NJ15N%94SP1EI6HV4.png

 

屋顶平面

 

9555P]FG8%)XWUZO8C5}`}L.png

 

卫生间平面

 

L}MWZ[U614RBMWXB%9R@V9M.png

 

首层平面布置图

 

M9EVYR5L7)6~6)((8ZNIV`C.png

 

一层配置图

 

THW`L6~}K`8YIEJYSDF{E)5.png

立面图

更多

热门标签

找设计师请拨打:

180-8488-1111
登录