SU模型首页 餐饮空间

食堂建筑全套施工图,食堂CAD建筑图纸下载

资源大小:0.40 下载文件

资源详情

编号: 24995

软件: SketchUp2007

大小: 0.40

时间: 20200626

关键字:

模型介绍

                空间划分:成套餐厅                                    餐饮类型:食堂

                图纸深度:施工图                                        设计风格:现代风格

                图片格式:JPG

资料为:食堂建筑全套施工图

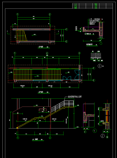
资料内容包括:全套施工图,工程设计图纸,轴立面图,首层平面图,墙身大样图,二层平面图,剖面图,节点大样图等,夹层平面图,厕所、洗手间平面详图,建筑设计说明等,食堂的设计要在满足大学生、校方、经营方三者需要的基础上,加入时代的元素和符号,在环境上舒适,在灯光上明亮、温暖。空间设计合理,内容详实,图纸中无错漏碰缺。作图规范,具有较高的参考价值,可供设计师参考。

部分图纸展示:

QQ截图20200625113434.png

 

平面

 

QQ截图20200625113440.png

 

剖面图

 

QQ截图20200625114340.png

 

剖面图

 

QQ截图20200625114355.png

 

剖面图

 

QQ截图20200625114400.png

 

平面

 

QQ截图20200625114346.png

 

工程设计说明

更多

热门标签

找设计师请拨打:

180-8488-1111
登录