SU模型首页 餐饮空间

毕兹卡西餐咖啡厅装修CAD图纸,咖啡厅CAD图纸下载

资源大小:2.70 下载文件

资源详情

编号: 24976

软件: SketchUp2007

大小: 2.70

时间: 20200626

关键字:

  • 西餐
  • 模型介绍

                     空间划分:成套餐厅                                    餐饮类型:西餐咖啡厅

                     图纸深度:施工图                                         设计风格:欧式风格

                     图片格式:JPG

    资料为:毕兹卡西餐咖啡厅装修CAD图纸

    资料内容包括:全套施工图,侧外立面图,正外立面图,一层平面布置图,一层天布置图,一层接待大厅平面布置图,一层接待大厅面布置图,一层接待大厅吊顶布置图,二层平面布置图,二层天布置图,三层平面布置图,三层天布置图,自助餐厅立面图空间设计合理,内容详实,图纸中无错漏碰缺。作图规范,具有较高的参考价值,可供设计师参考。

    部分图纸展示:

    QQ截图20200625105058.png

     

    一层接待大厅平面布置图

     

    QQ截图20200625105105.png

     

    一层接待大厅面布置图

     

    QQ截图20200625105110.png

     

    一层接待大厅吊顶布置图

     

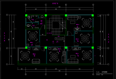
    QQ截图20200625105119.png

     

    二层平面布置图

     

    QQ截图20200625105124.png

     

    二层天布置图

     

    QQ截图20200625105129.png

     

    三层平面布置图

    更多

    热门标签

    找设计师请拨打:

    180-8488-1111
    登录