SU模型首页 餐饮空间

优雅型咖啡厅设计CAD图纸,咖啡厅CAD建筑图纸下载

资源大小:1.80 下载文件

资源详情

编号: 24975

软件: SketchUp2007

大小: 1.80

时间: 20200626

关键字:

模型介绍

                空间划分:成套餐厅                                  餐饮类型:咖啡厅

                图纸深度:施工图                                     设计风格:现代风格

                图片格式:JPG

资料为:优雅型咖啡厅设计CAD图纸

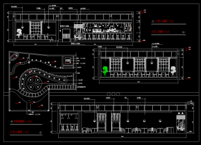
资料内容包括:全套施工图,平面布置图,包间立面图,吊顶布置图,大厅立面图,吧台正立面图,吧台剖面图,吧台平面图,大厅正立面图等,内部用餐空间营造浪漫氛围,客被浓浓的咖啡香包裹着,带给顾客一个细细品味生活的高级体验的餐厅环境。空间设计合理,内容详实,图纸中无错漏碰缺。作图规范,具有较高的参考价值,可供设计师参考。

部分图纸展示:

QQ截图20200625104918.png

 

立面图

 

QQ截图20200625104923.png

 

咖啡厅大厅立面图

 

QQ截图20200625104947.png

 

咖啡厅平面布置图

 

QQ截图20200625104952.png

 

咖啡厅包间立面图

 

QQ截图20200625104959.png

 

咖啡厅包间立面图

 

QQ截图20200625105010.png

 

咖啡厅立面图

更多

热门标签

找设计师请拨打:

180-8488-1111
登录