SU模型首页 餐饮空间

五星级大酒店CAD装饰工程图,酒店餐厅CAD图纸下载

资源大小:11.40 下载文件

资源详情

编号: 24969

软件: SketchUp2007

大小: 11.40

时间: 20200626

关键字:

模型介绍

              空间划分:成套酒店                                      图纸深度:施工图

              功能类型:酒店                                             设计风格:现代风格

              图片格式:JPG

资料为:五星级大酒店CAD装饰工程图,内附使用说明

资料内容包括:全套施工图,办公室施工,电梯厅施工图,二层多功能厅平、立面图,九层平面图,欧式套房施工图,平面三层更衣室施工图,平面三层平面图,平面三层湿区施工图,平面三层休息区施工图,平面三层走廊施工图,日式套房施工图等,空间设计合理,内容详实,图纸中无错漏碰缺。作图规范,具有较高的参考价值,可供设计师参考。

部分图纸展示:

QQ截图20200625103430.png

 

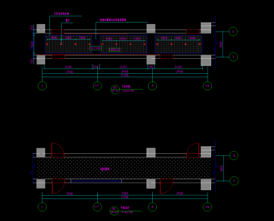
平立面图

 

QQ截图20200625103439.png

 

立面图

 

QQ截图20200625103453.png

 

平面

 

QQ截图20200625103509.png

 

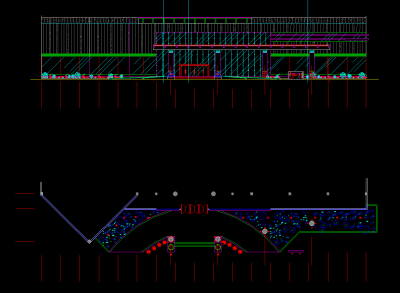
平面详图

 

QQ截图20200625103459.png

 

平面详图

 

QQ截图20200625103509.png

 

详图

 

QQ截图20200625103522.png

 

详图

更多

热门标签

找设计师请拨打:

180-8488-1111
登录