SU模型首页 餐饮空间

餐厅小包间CAD施工图,餐厅小包间CAD图纸下载

资源大小:2.70 下载文件

资源详情

编号: 24965

软件: SketchUp2007

大小: 2.70

时间: 20200625

关键字:

模型介绍

         空间划分:成套餐厅                            图纸深度:施工图

         功能类型:餐厅                                   设计风格:现代风格

         图片格式:JPG

     本资料为:现代餐厅CAD建筑图纸,内附详细施工图。

     资料内容包括:包房立面图图纸包房平面布置图图纸、节点大样图纸、剖面图图纸吊顶尺寸图图纸吊顶平面布置图图纸、家具尺寸图图纸、开关布置图图纸、立面图图纸平面布置图图纸、墙体尺寸图图纸梯立面图图纸、三面布置图图纸、一立面布置图图纸卫生间立面图图纸卫生间剖面图图纸等等,图纸制作精确,无错漏碰缺,具有较高的参考价值。

     部分图纸展示如下:

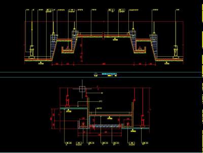
剖面.jpg

 

剖面图

 

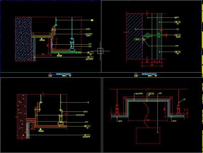
节点大样1.jpg

 

节点大样

 

节点大样.jpg

 

节点大样

 

<a href=https://www.yitu.cn/sketchup/baofang/index.html target=_blank class=infotextkey>包房</a><a href=https://www.yitu.cn/su/7392.html target=_blank class=infotextkey>平面</a>布置图.jpg

 

平面布置图

 

<a href=https://www.yitu.cn/sketchup/baofang/index.html target=_blank class=infotextkey>包房</a>立面图.jpg

 

立面图

 

QQ截图20200625104937.jpg

 

立面图

 

 

更多

热门标签

找设计师请拨打:

180-8488-1111
登录