SU模型首页 餐饮空间

食堂综合楼CAD施工图,食堂综合楼CAD图纸下载

资源大小:0.70 下载文件

资源详情

编号: 24960

软件: SketchUp2007

大小: 0.70

时间: 20200625

关键字:

模型介绍

         空间划分:成套食堂图纸                            图纸深度:施工图

         功能类型:食堂                                          设计风格:现代风格

         图片格式:JPG

     本资料为:现代食堂CAD建筑图纸,内附详细施工图。

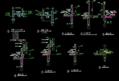
     资料内容包括:二层平面布置图图纸、建筑说明图纸、立面图图纸、墙身大样图纸、一层平面布置图图纸、三层平面布置图图纸、四层平面布置图图纸、五层平面布置图图纸、屋顶平面图纸雨棚大样图纸檐沟大样图纸、女儿墙大样图纸卫生间立面图图纸卫生间剖面图图纸等等,图纸制作精确,无错漏碰缺,具有较高的参考价值。

     部分图纸展示如下:

<a href=https://www.yitu.cn/su/7618.html target=_blank class=infotextkey>雨棚</a>,<a href=https://www.yitu.cn/su/7163.html target=_blank class=infotextkey>檐沟</a>,女儿墙大样.jpg

 

大样图

 

一层<a href=https://www.yitu.cn/su/7392.html target=_blank class=infotextkey>平面</a>.jpg

 

一层平面

 

屋顶<a href=https://www.yitu.cn/su/7392.html target=_blank class=infotextkey>平面</a>.jpg

 

屋顶平面

 

四五层<a href=https://www.yitu.cn/su/7392.html target=_blank class=infotextkey>平面</a>.jpg

 

平面布置图

 

三层<a href=https://www.yitu.cn/su/7392.html target=_blank class=infotextkey>平面</a>.jpg

 

三层平面

 

墙身大样.jpg

 

墙身大样

 

 

更多

热门标签

找设计师请拨打:

180-8488-1111
登录