SU模型首页 餐饮空间

香川菜馆装修方案CAD图纸,香川菜馆装修方案CAD图纸下载

资源大小:2.30 下载文件

资源详情

编号: 24915

软件: SketchUp2007

大小: 2.30

时间: 20200624

关键字:

模型介绍

         空间划分:成套餐饮店                                 图纸深度:施工图

         功能类型:餐饮区                                        设计风格:现代风格

         图片格式:JPG

     本资料为:现代餐饮店装修CAD施工图,内附详细的施工图图纸

     资料内容包括:二平面布置图图纸、二顶面布置图图纸、立面图图纸梯隔断i面图图纸梯隔断剖面图图纸、更衣柜立面图图纸、更衣柜剖面图图纸收银台立面图图纸、外立面图图纸玄关立面图图纸、一布置图图纸、一顶面图图纸、一洗手间立面图图纸、二洗手间平面图纸等等,图纸内容精确规范,无错漏碰缺,具有较高的参考价值。

     部分图纸展示如下:

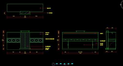
<a href=https://www.yitu.cn/sketchup/louti/index.html target=_blank class=infotextkey><a href=https://www.yitu.cn/su/6782.html target=_blank class=infotextkey><a href=https://www.yitu.cn/su/8159.html target=_blank class=infotextkey>楼</a>梯</a></a>隔断详图,更<a href=https://www.yitu.cn/sketchup/yigui/index.html target=_blank class=infotextkey>衣柜</a>.jpg

 

梯隔断详图

 

<a href=https://www.yitu.cn/su/6902.html target=_blank class=infotextkey>收银台</a>思想图.jpg

 

 

收银台详图

 

外立面.jpg

 

外立面

 

<a href=https://www.yitu.cn/sketchup/xuanguan/index.html target=_blank class=infotextkey>玄关</a>立面图.jpg

 

玄关立面图

 

一<a href=https://www.yitu.cn/su/8159.html target=_blank class=infotextkey>楼</a>布置图.jpg

 

布置图

 

一<a href=https://www.yitu.cn/su/8159.html target=_blank class=infotextkey>楼</a>顶面图.jpg

 

顶面图

 

 

更多

热门标签

找设计师请拨打:

180-8488-1111
登录