SU模型首页 餐饮空间

现代酒店中餐厅散座区cad装修图,餐厅cad图纸下载

资源大小:6.00 下载文件

资源详情

编号: 24902

软件: SketchUp2007

大小: 6.00

时间: 20200624

关键字:

模型介绍

   空间划分:餐饮空间                                          图纸深度:施工图

  商业类型:高档餐厅                                           设计风格:现代风格

  本资料现代酒店餐厅散座区cad装修图

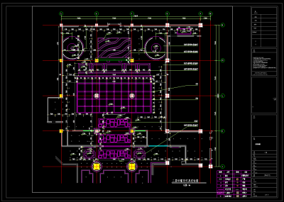
  资料内容包括:全套CAD施工图,平面及索引图,平面放线图,灯具定位图,平面综合天图,面铺装图,中餐厅立面图,服务台平面图,节点大样平面图等。内容详实,可供参考,图纸中无错漏碰缺,具有较高的参考价值。

  部分图纸展示:

%WCF{_[{GJ`UGSGP$1Q4(PC.png

 

二层平面综合天

 

]7@(U}]GX64OQIH[5A7I[{A.png

 

餐厅立面图

 

]DXWMQZ{W31MHCCH_V3DW5T.png

 

二层平面布置及索引图

 

2K}D3A%Y_@4OAXYR5T5%((L.png

 

二层面铺装图

 

NOOG$3ZUHF$UQ18AUN_Q010.png

 

二层平面放线图

 

Q$)PBAGA8U{OHH}{FMOTU17.png

二层灯具定位图

更多

热门标签

找设计师请拨打:

180-8488-1111
登录