SU模型首页 餐饮空间

假日大酒店设计装修图,酒店餐厅CAD施工图纸下载

资源大小:9.40 下载文件

资源详情

编号: 24883

软件: SketchUp2007

大小: 9.40

时间: 20200624

关键字:

模型介绍

                   空间划分:成套餐厅                                餐饮类型:酒店餐厅

                   图纸深度:施工图                                      设计风格:中式风格

                   图纸格式:JPG 

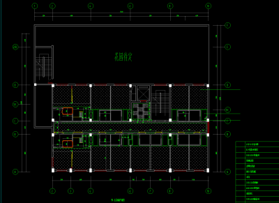
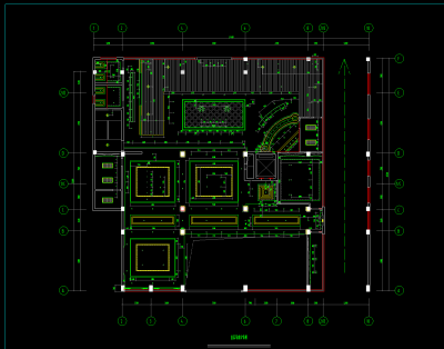
资料为:假日大酒店设计装修图

资料内容包括:全套施工图,首层平面布置图,首层吊顶平面图,首层平面图,首层吊顶定位图,四~五层平面布置图,吊顶平面图,平面图,吊顶定位图,六~七层平面图,平面图,吊顶图等,空间设计合理,内容详实,图纸中无错漏碰缺。作图规范,具有较高的参考价值,可供设计师参考。

部分图纸展示:

QQ截图20200623203357.png

 

吊顶定位图

 

QQ截图20200623203402.png

 

平面布置图

 

QQ截图20200623203406.png

 

平面

 

QQ截图20200623203414.png

 

平面

 

QQ截图20200623203419.png

 

吊顶平面

 

QQ截图20200623203425.png

 

平面

更多

热门标签

找设计师请拨打:

180-8488-1111
登录