SU模型首页 餐饮空间

全套学校食堂施工图,食堂CAD施工图纸下载

资源大小:0.30 下载文件

资源详情

编号: 24878

软件: SketchUp2007

大小: 0.30

时间: 20200624

关键字:

  • 学校
  • 模型介绍

                    空间划分:成套餐厅                                     餐饮类型:学校食堂

                    图纸深度:施工图                                         设计风格:中式风格

                    图纸格式:JPG 

    资料为:全套学校食堂施工图

    资料内容包括:全套施工图,屋面平面图,立面图,三层平面图,二层平面图,一层平面图,建筑设计说明,空间设计合理,工程做法以及用料表图,内容详实,图纸中无错漏碰缺。作图规范,具有较高的参考价值,可供设计师参考。

    部分图纸展示:

    QQ截图20200623202826.png

     

    立面图

     

    QQ截图20200623202832.png

     

    二层平面

     

    QQ截图20200623202837.png

     

    立面图

     

    QQ截图20200623202843.png

     

    一层平面

     

    QQ截图20200623202848.png

     

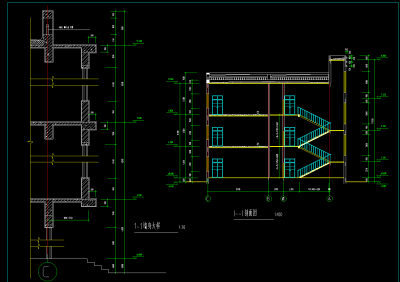
    剖面图

     

    QQ截图20200623202854.png

     

    建筑设计说明图

    更多

    热门标签

    找设计师请拨打:

    180-8488-1111
    登录