SU模型首页 餐饮空间

风情火锅厅CAD施工图,风情火锅厅CAD图纸下载

资源大小:2.60 下载文件

资源详情

编号: 24871

软件: SketchUp2007

大小: 2.60

时间: 20200624

关键字:

模型介绍

         空间划分:成套餐厅                         图纸深度:施工图

         功能类型:火锅店                            设计风格:现代风格

         图片格式:JPG

     本资料为:现代火锅店CAD施工图,内附详细的施工图图纸

     资料内容包括:一层面材料布置图图纸、一层平面布置图图纸、一层天棚灯饰布置图图纸包房立面图图纸服务台看板立面图图纸包房平面布置图图纸包房布置图图纸、男卫生间立面图图纸、男卫生间平面布置图图纸、女卫生间平面布置图图纸、夹层面材料布置图图纸、夹层平面布置图图纸图纸内容精确规范,无错漏碰缺,具有较高的参考价值。

     部分图纸展示如下:

一层天棚灯饰布置.jpg

 

一层天棚灯饰布置图

 

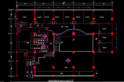
一层<a href=https://www.yitu.cn/su/7392.html target=_blank class=infotextkey>平面</a>布置图.jpg

 

一层平面布置图

 

一层<a href=https://www.yitu.cn/su/7872.html target=_blank class=infotextkey>地</a>面材料布置图.jpg

 

一层面材料布置图

 

夹层土建定位及立面索引图.jpg

 

立面索引图

 

夹层<a href=https://www.yitu.cn/su/7392.html target=_blank class=infotextkey>平面</a>布置图.jpg

 

夹层平面布置图

 

夹层<a href=https://www.yitu.cn/su/7872.html target=_blank class=infotextkey>地</a>面材料布置.jpg

 

夹层面材料布置图

 

 

更多

热门标签

找设计师请拨打:

180-8488-1111
登录