SU模型首页 餐饮空间

酒店餐饮空间室内CAD装修图,餐饮空间CAD图纸下载

资源大小:1.70 下载文件

资源详情

编号: 24859

软件: SketchUp2007

大小: 1.70

时间: 20200624

关键字:

模型介绍

         空间划分:成套酒店餐厅                      图纸深度:施工图

         功能类型:中餐厅                                 设计风格:现代风格

         图片格式:JPG

     本资料为:现代酒店餐厅CAD施工图,内附详细的施工图图纸

     资料内容包括:包房门立面图图纸厨房立面图图纸电视柜立面图图纸电视柜剖面图图纸、节点大样图纸、结构平面图纸酒柜立面图图纸、柱立面图图纸包房平面布置图图纸包房布置图图纸、剖面图图纸、天棚布置图图纸、天布置图图纸面材质平面布置图图纸卫生间平面图纸卫生间立面图图纸等等、图纸内容精确规范,无错漏碰缺,具有较高的参考价值。

     部分图纸展示如下:

<a href=https://www.yitu.cn/sketchup/baofang/index.html target=_blank class=infotextkey>包房</a>门立面图.jpg

 

包房门立面图

 

<a href=https://www.yitu.cn/sketchup/chufang/index.html target=_blank class=infotextkey><a href=https://www.yitu.cn/su/8620.html target=_blank class=infotextkey>厨房</a></a>立面.jpg

 

厨房立面图

 

<a href=https://www.yitu.cn/sketchup/dianshigui/index.html target=_blank class=infotextkey><a href=https://www.yitu.cn/su/7226.html target=_blank class=infotextkey>电视</a>柜</a>详图.jpg

 

电视柜详图

 

<a href=https://www.yitu.cn/su/7043.html target=_blank class=infotextkey>服务台</a>详图.jpg

 

服务台详图

 

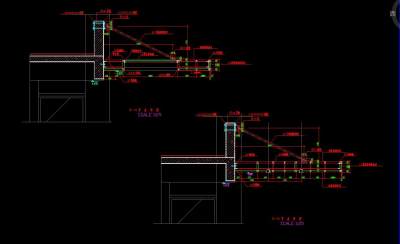
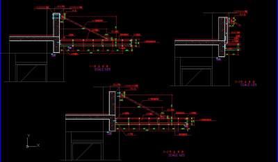
节点大样.jpg

 

节点大样

 

节点大样1.jpg

 

节点大样

 

 

更多

热门标签

找设计师请拨打:

180-8488-1111
登录