SU模型首页 餐饮空间

绣湖春天酒店包厢层施工图,酒店餐厅CAD施工图下载

资源大小:9.30 下载文件

资源详情

编号: 24849

软件: SketchUp2007

大小: 9.30

时间: 20200624

关键字:

模型介绍

                空间划分:成套餐厅                              餐饮类型:酒店餐厅

                图纸深度:施工图                                 设计风格:现代风格

                图纸格式:JPG                                     包含图片:效果图

资料为:绣湖春天酒店包厢层施工图

资料内容包括:全套施工图,四层天布置图,四层平面布置图,四层坪布置图,四层隔墙尺寸图,四层打孔接排平面图,四层空调给排管道图,四层公共卫生间平面图,四层电梯厅以及收银区平面图,大厅立面图,节点大样图,效果图等,空间设计合理,内容详实,图纸中无错漏碰缺。作图规范,具有较高的参考价值,可供设计师参考。

部分图纸展示:

QQ截图20200623195433.png

 

一层天布置图

 

QQ截图20200623195439.png

 

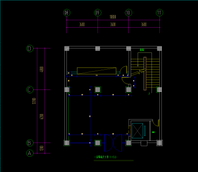
一层平面布置图

 

QQ截图20200623195444.png

 

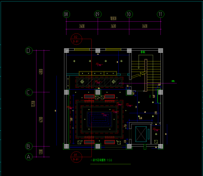
一层坪布置图

 

QQ截图20200623195448.png

 

一层隔墙尺寸图

 

QQ截图20200623195453.png

 

一层空调给排管道

 

QQ截图20200623195459.png

 

四层天布置图

更多

热门标签

找设计师请拨打:

180-8488-1111
登录