SU模型首页 餐饮空间

喜福会酒楼CAD施工图,酒楼CAD图纸下载

资源大小:14.10 下载文件

资源详情

编号: 24848

软件: SketchUp2007

大小: 14.10

时间: 20200624

关键字:

模型介绍

                 空间划分:成套餐厅                                     餐饮类型:酒

                 图纸深度:施工图                                         设计风格:中式风格

                 图纸格式:JPG                                             包含图片:效果图

资料为:喜福会酒CAD施工图

资料内容包括:全套施工图,酒平面布置图,立面图,单间施工图,二层立面图,门厅展开图,门详图,三层立面图,三四层平面图,一层立面图,一层、二层平面图,实景图,效果图等,空间设计合理,内容详实,图纸中无错漏碰缺。作图规范,具有较高的参考价值,可供设计师参考。

部分图纸展示:

QQ截图20200623195327.png

 

节点大样图

 

QQ截图20200623195334.png

 

节点图

 

QQ截图20200623195340.png

 

节点图

 

QQ截图20200623195351.png

 

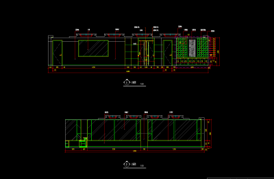
立面图

 

QQ截图20200623195354.png

 

立面图

 

QQ截图20200623195406.png

 

立面图

 

QQ截图20200623195418.png

 

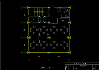
三层平面

 

更多

热门标签

找设计师请拨打:

180-8488-1111
登录