SU模型首页 餐饮空间

深圳经典酒店中餐厅施工图,中餐厅CAD图纸下载

资源大小:20.70 下载文件

资源详情

编号: 24835

软件: SketchUp2007

大小: 20.70

时间: 20200623

关键字:

模型介绍

            空间划分:成套餐厅                                      餐饮类型:酒店餐厅

            图纸深度:施工图                                          设计风格:现代风格

            图纸格式:JPG                                               包含图片:效果图

资料为:深圳经典酒店餐厅施工图

资料内容包括:全套施工图,餐厅平面详图,餐厅立面图,总平面图,宝消防施工图,面铺装图大堂以及散座平面图,豪华包房平面图,宴会厅平面图,效果图等,内容详实,图纸中无错漏碰缺。作图规范,具有较高的参考价值,可供设计师参考。

部分图纸展示:

QQ截图20200623160005.png

 

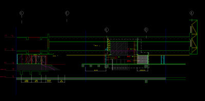
节点大样图

 

QQ截图20200623160056.png

 

立面图

 

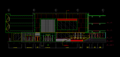
QQ截图20200623160103.png

 

大样图

 

QQ截图20200623160107.png

 

大样图

 

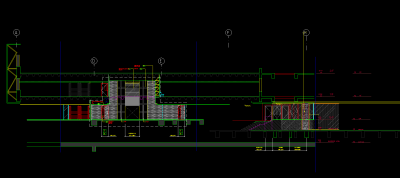
QQ截图20200623160114.png

 

立面图

 

QQ截图20200623160118.png

 

立面图

更多

热门标签

找设计师请拨打:

180-8488-1111
登录