SU模型首页 餐饮空间

中式风格火锅餐饮设计图,火锅店CAD施工图下载

资源大小:4.50 下载文件

资源详情

编号: 24293

软件: SketchUp2007

大小: 4.50

时间: 20200616

关键字:

模型介绍

             空间划分:成套餐厅                                         图纸深度:施工图

             餐饮类型:火锅餐厅                                         设计风格:中式餐厅

             图片格式:JPG                                              

资料为:中式风格火锅餐饮设计图。

资料内容包括:全套CAD施工图,剖面图,火锅店立面图,门厅玻璃吊顶大样图,一层平面布置图,二层平面布置图,一层面铺设图,二层面铺设图,一层尺寸定位以及面积核算图,二层尺寸定位以及面积核算图,一层天棚布置图,二层天布置图,一层立面索引图,二层立面索引图,内容详实,作图规范,图纸中无错漏碰缺,具有较高的参考价值,可供设计师参考。

部分图纸展示:

QQ截图20200615154515.png

 

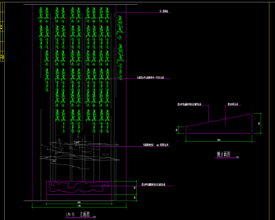
立面图

 

QQ截图20200615154522.png

 

立面图

 

QQ截图20200615154527.png

 

背立面图

 

QQ截图20200615154537.png

 

立面图

 

QQ截图20200615154627.png

 

立面图

 

QQ截图20200615154716.png

 

缩略图

QQ截图20200615154522.png

QQ截图20200615154515.png

更多

热门标签

找设计师请拨打:

180-8488-1111
登录