SU模型首页 餐饮空间

新中式火锅店cad图纸,火锅店cad施工图下载

资源大小:15.20 下载文件

资源详情

编号: 24288

软件: SketchUp2007

大小: 15.20

时间: 20200615

关键字:

模型介绍

     餐饮类型:火锅餐厅                                          设计风格:新中式风格

  图片格式:JPG                                                  包含图片:效果图

  本资料为:新中式火锅店cad图纸,内附效果图。

  资料内容包括:全套CAD施工图,一层顶面布置图,入口立面图,二层平面布置图,一层灯具定位图插座平面配电图,插座平面定位图,电磁炉插座平面配电图,照明平面配电图,应急疏散照明平面配电图,背景音乐平面布置图,喷淋点位平面布置图,烟感探测点位平面布置图,通风平面布置图等,作图规范,内容详实,具有较高的参考价值。

  部分图纸展示:

_0J{W82_@%4Q2MZVBA4VPMG.png

 

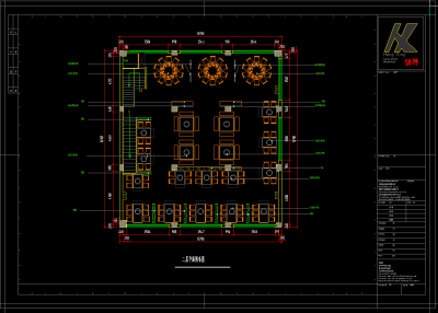
二层平面

 

2{D}A`LC5VYB5MTW3Y@%ZFD.png

 

一层平面布置图

 

4AD``H0TONKY)SC`0FV([XD.png

 

立面图

 

8E%[$P97Q%AYHYKGQ)41G5M.png

 

立面图

 

E`94H$D%WADY`H@N`JK4}LP.png

 

一层灯具定位图

 

NMVDTG5L}0UGKZL48%H(@KT.png

一层顶面布置图

 

 

更多

热门标签

找设计师请拨打:

180-8488-1111
登录