SU模型首页 餐饮空间

复古餐厅CAD图纸,餐厅CAD施工图下载

资源大小:19.00 下载文件

资源详情

编号: 23195

软件: SketchUp2007

大小: 19.00

时间: 20200527

关键字:

模型介绍

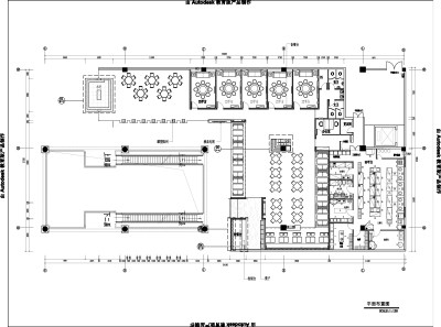
 复古餐厅CAD图纸餐厅CAD施工图下载内容简介:里面含有详细的平面布置图,立面图,剖面图,图纸制作规范,具有参考价值,可供参考。

部分图纸展示如下:

01.jpg

 

平面布置图

 

02.jpg

 

立面图

 

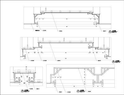
03.jpg

 

立面图

 

05.jpg

 

立面图

 

06.jpg

 

立面图

 

07.jpg

 

节点大样

 

 

 

06.jpg

更多

热门标签

找设计师请拨打:

180-8488-1111
登录